Einfamilienhaus PB 018
Architekturstil:
klassisch
Keller:
ohne Keller
Dachform:
Sattel- / Krüppelwalmdach
Hausdaten
| Grundrisskomplexität | normal - 4 Ecken |
| Hauslänge | 14,06 m |
| Hausbreite | 8,43 m |
| Architekturstil | klassisch |
| Dachkomplexität | normal |
| Keller | mit Keller |
| Dachform | Sattel- / Krüppelwalmdach |
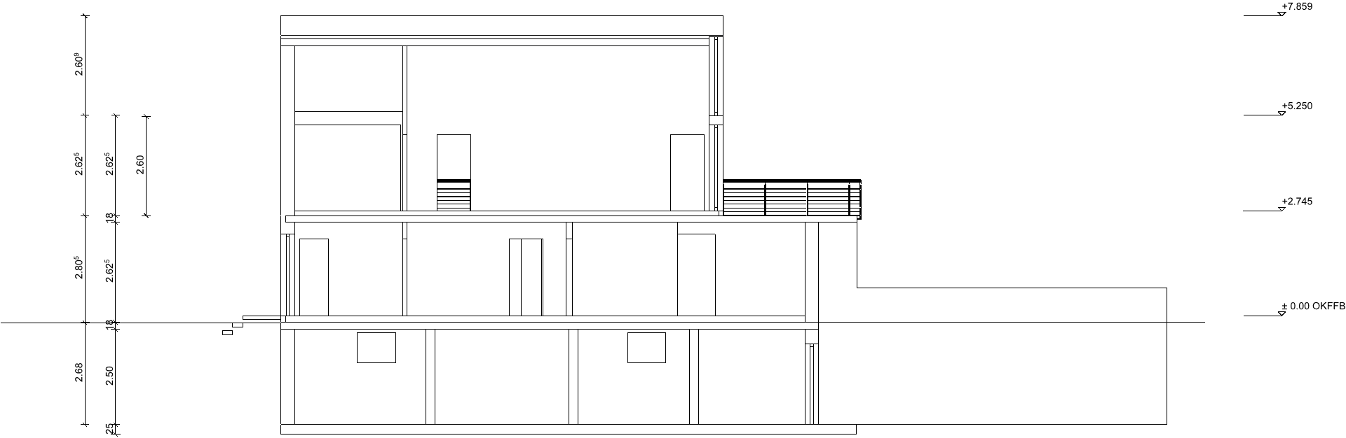
| Dachneigung | 30° |
| Kniestock | 2,60 m |
| Geschossanzahl | 1,5-geschossig |
| Grundfläche | 303,47 m² |
| Wohnfläche | 197,34 m² |
Wohnräume
| HWR | 11,47 m² |
| Bad | 8,78 m² |
| Flur | 9,27 m² |
| Küche | 10,35 m² |
| Schlafen | 18,35 m² |
| WC | 1,92 m² |
| Windfang | 10,59 m² |
| Wohnen/Essen | 35,94 m² |
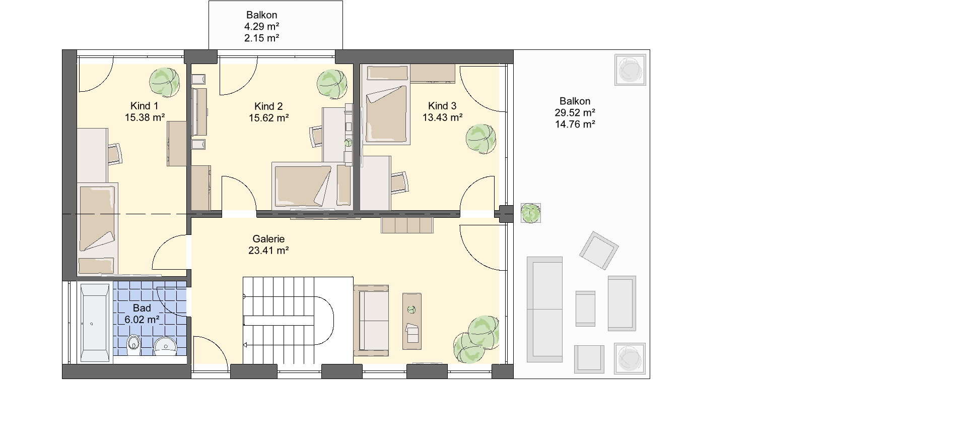
| Bad | 6,02 m² |
| Balkon | 14,76 m² |
| Balkon | 2,15 m² |
| Galerie | 23,41 m² |
| Kind 1 | 15,38 m² |
| Kind 2 | 15,62 m² |
| Kind 3 | 13,43 m² |
Starten Sie Ihr Hausprojekt mit uns!
Kontaktieren Sie uns.
Wir freuen uns, Ihre Fragen zu beantworten.